Italiano
Dal 1990 passione e professionalità
in continuo aggiornamento per la TUA CASA!

NOVARA NORD - QUADRILOCALE CON DOPPI SERVIZI E BOX

125.000 €
124 m2
3 Camere
2 Bagni
Codice
334
Città
Novara (Vignale)
Categoria
4 o più locali
Locali
4
Box
1
Classe energetica
F
300,22 kWh/m²a
Stato Immobile
Ristrutturato
Grado
Medio
Posizione
Periferia
Panorama
Vista Aperta
Orientamento
Est Nord Ovest
Lati Liberi
3
Giardino
Comune
Tipo Soggiorno
Salone
Tipo Cucina
Abitabile
Riscaldamento
Conta Calorie
Tipo Riscaldam.
Caldaia
Tipo Impianto
Radiatori
Fonte Energetica
Metano
Acqua Calda
Autonoma
Raffrescamento
Split
Infissi
Legno Doppio Vetro
Serramenti
Ottimo
Persiana
Tapparella PVC
Pavim. Giorno
Ceramica
Pavim. Notte
Ceramica
Pavim. Cucina
Ceramica
Pavim. Bagno
Ceramica
Accessori
Aria Condizionata, Doppi Vetri, Parco Condominiale, Passaggio Pedonale, Porta Blindata, Zanzariere
NOVARA - ZONA NORD

Quartiere Vignale

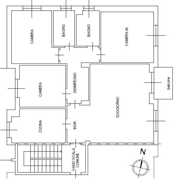
Appartamento in vendita - Luminosità e comfort al terzo piano

Scopri questo incantevole appartamento luminosissimo di quattro vani, situato al terzo ed ultimo piano di un tranquillo edificio. L'ingresso living conduce a una spaziosa zona giorno, dove un ampio salone si unisce a una cucina abitabile, perfetta per le cene in famiglia. La zona notte è ben organizzata con un corridoio che porta a una camera matrimoniale e due camerette spaziose, ideali per i tuoi bambini o per un ufficio.

Questo appartamento vanta doppi servizi, entrambi finestrati, e due balconi che offrono una vista mozzafiato sul tramonto e sul Monte Rosa.

La tripla esposizione garantisce luce naturale durante tutto il giorno, creando un'atmosfera calda e accogliente.

Recentemente ristrutturato, è dotato di portoncino blindato, serramenti in legno con doppi vetri e zanzariere, per il massimo comfort e sicurezza.

Inoltre, l'aria condizionata rende gli ambienti freschi durante l'estate.

Situato in una strada a fondo cieco, offre tranquillità e privacy, pur essendo ben servito da scuole, servizi e fermata autobus nelle vicinanze.

Completano l'offerta una cantina e un box al piano terreno, inclusi nel prezzo.

Libero autunno 2026.

Non perdere l'occasione di vivere in questo splendido appartamento!

Classe energetica F – Epgl,nren 300,22 kWh/m²anno.

Mappa

Via Boves 21, Novara (NO)

Richiedi informazioni

Invia

Condividi

Cookie preference